ATLANTIC LITTORAL Agence
Télécharger la fiche

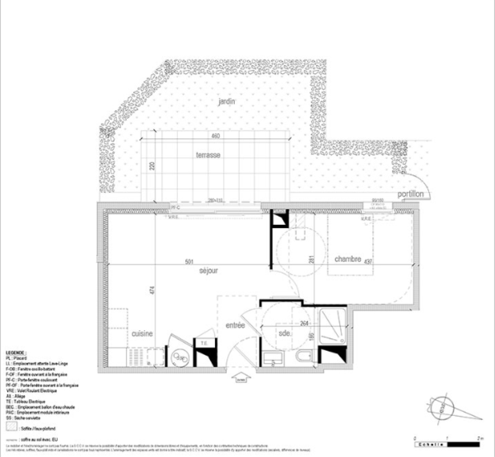
Appartement 2 pièce(s) 1 chambre(s) 38.74 m²

Pénestin (56760)
155 525 € Référence 001

A propos de ce bien

A 300 m de la Plage de la Mine d'Or, dans une résidence sécurisée, l'agence ATLANTIC LITTORAL vous propose cet appartement situé au rez-de-chaussée composé d'une pièce de vie avec cuisine ouverte, une chambre, une salle d'eau avec wc.

Vos locataires pourront profiter du jardinet de 33m² avec terrasse.

Ils trouveront facilement à stationner avec un parking privatif ainsi qu’un local à vélos.

Programme en cours de réservation. Frais de notaire réduits

Prêt Locatif Social.

Caractéristiques de ce bien

  • Surface 38,74 m²
  • carrez 38,74 m²
  • séjour 22,33 m²
  • 1 chambre(s)
  • 1 salle(s) d'eau
  • construit en 2025
  • Chauffage individuel : radiateur (electrique)
  • 1 parking(s)
  • exposition Est
  • 2 côté(s) mitoyen(s)
  • 2 étage(s)
  • ascenseur
  • terrasse
  • visiophone
  • interphone

Diagnostics énergétiques

DPE
GES
DPE vierge

Informations financières

Prix de vente honoraires TTC inclus 155 525 €

Calcul des mensualités

* Champs obligatoires