ATLANTIC LITTORAL Agence
Télécharger la fiche

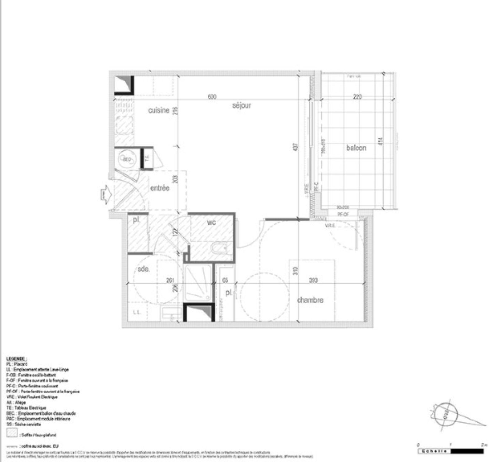
Appartement 2 pièce(s) 1 chambre(s) 47.23 m²

Pénestin (56760)
198 333 € Référence 110

A propos de ce bien

Découvrez cet appartement situé au 1er étage d’une résidence sécurisée à 300m de la plage de la Mine d'Or !

Il se compose d'une pièce de vie avec cuisine ouverte ouvert sur balcon, une chambre, une salle d'eau, un wc

1 parking en sous sol. local vélos

Frais de notaire réduits

Prêt locatif social

Caractéristiques de ce bien

  • Surface 47,23 m²
  • carrez 47,23 m²
  • séjour 27,05 m²
  • 1 chambre(s)
  • 1 salle(s) d'eau
  • cuisine américaine
  • Chauffage individuel : radiateur (electrique)
  • exposition Sud
  • 1 côté(s) mitoyen(s)
  • 1er étage
  • 2 étage(s)
  • ascenseur
  • balcon
  • visiophone
  • interphone
  • accès handicapé

Diagnostics énergétiques

DPE
GES
DPE vierge

Informations financières

Prix de vente honoraires TTC inclus 198 333 €

Calcul des mensualités

* Champs obligatoires